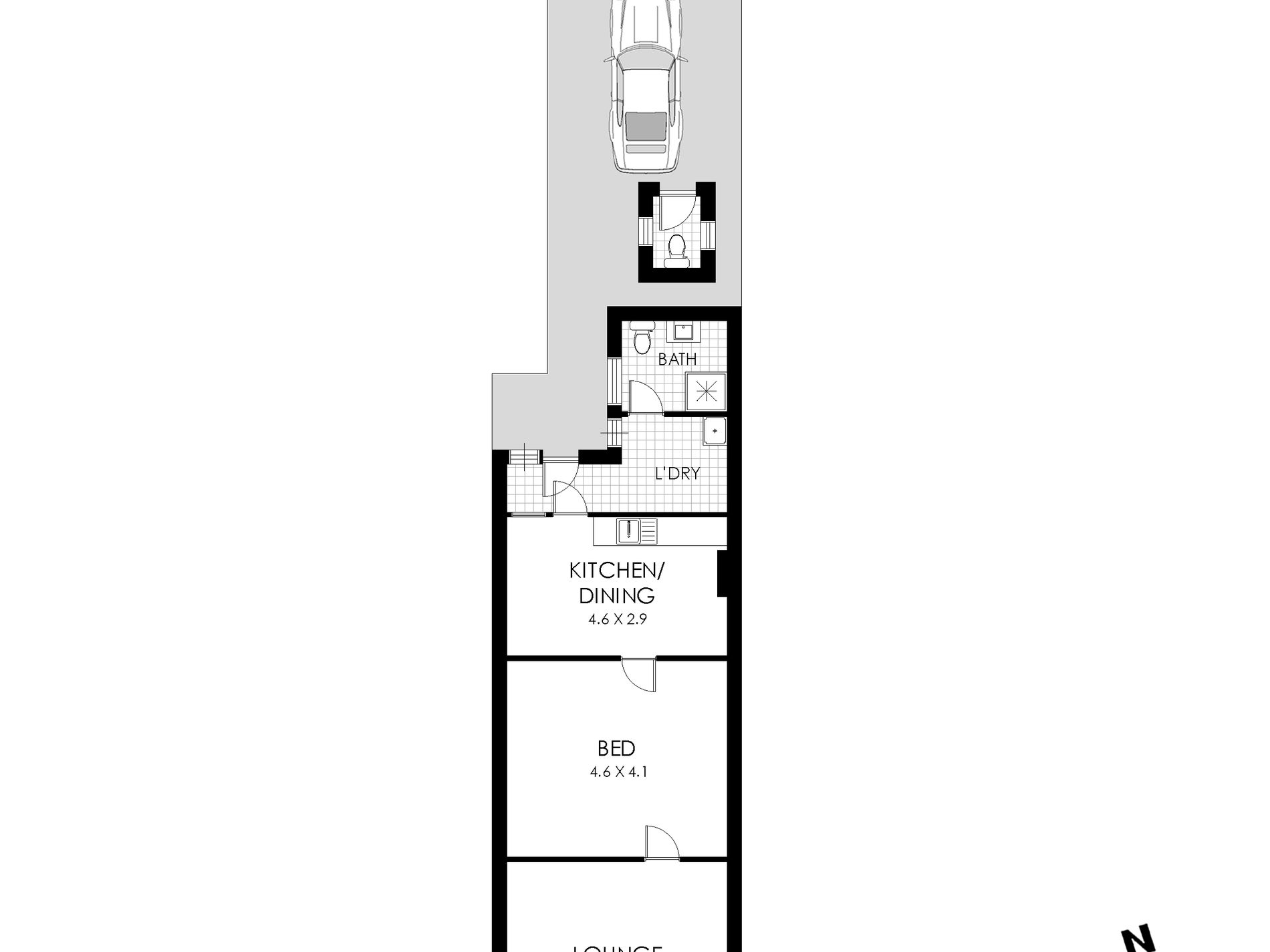
Enjoy the convenience and lifestyle of this single level property that can be used as a home, studio, or office. You can enjoy the vibrant beachfront cafs and restaurants at one end of the street or walk to Rockdale's shops and train station at the other. This single level house is a rare opportunity to lease a property that can suit your personal and professional needs.
This property has many features including:
- large eat in kitchen, an
- Internal laundry
- spacious driveway with rear lane access.
- Local parks, schools, Coles, and Bayfront promenades are also a walk away
- Suits variety of businesses (Medical, beauty, professional)





















